Обяви За нас Контакти
Продава 3-СТАЕН
град София, Манастирски ливади
302 400 €
591 442.99 лв.

(2 400 €, 4 693.99 лв./m2)
Цената е с включено ДДС
Коригирана в 12:19 на 10 февруари, 2026 год.
Обявата е посетена 224 пъти.
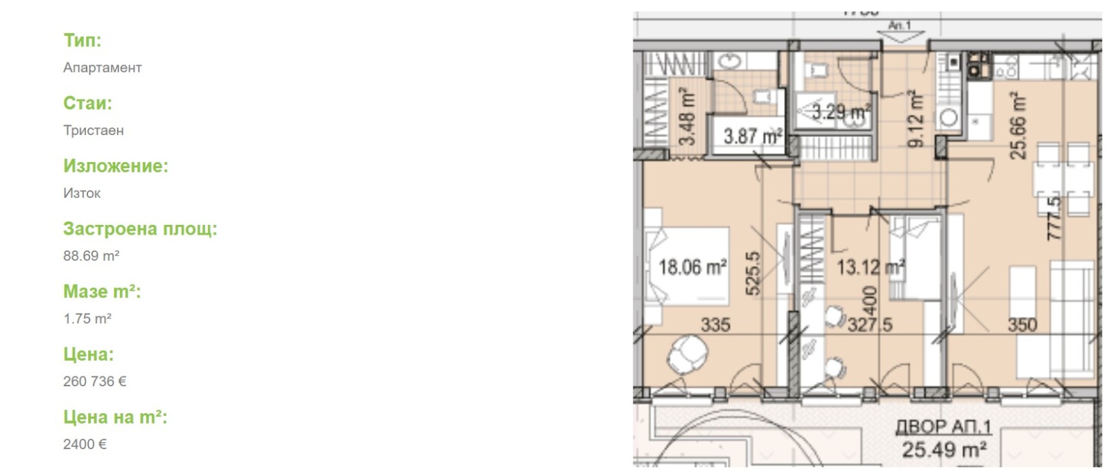
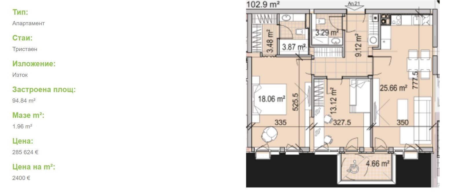
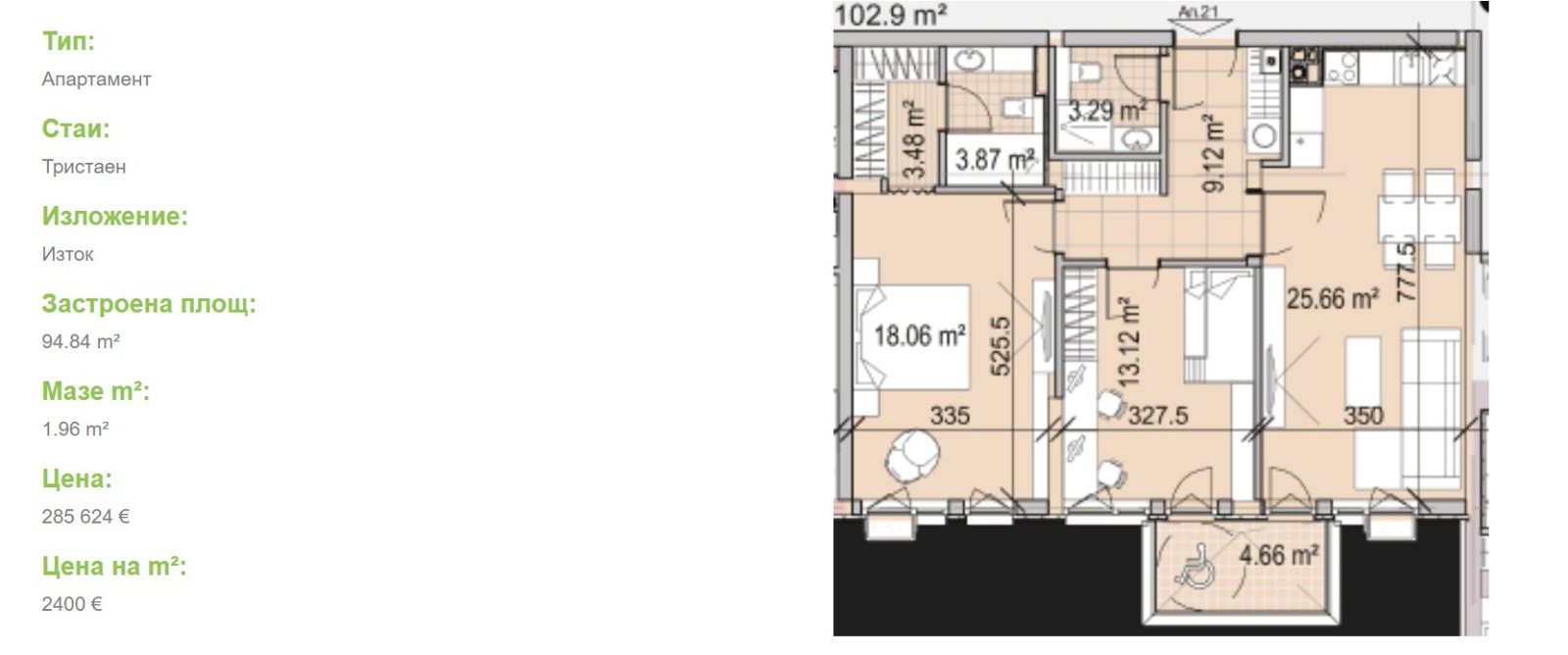
Площ:
126 m2
Етаж:
3-ти от 4
Строителство:
Тухла, Ще бъде въведен в експлоатация 2027 г.

Описание на имота:


🏡 Ново строителство в Манастирски ливади Изток
🎯 35 апартамента в бутикова сграда с модерна визия

📢 Без индексация на цените! Без комисионна!

📆 Планирано завършване: 2027 г.

📄 Статус: На проект

💰 Цени и параметри
🔑 Начална цена: 169 368 с ДДС включен

📐 Цена на квадратен метър: 2 400 /кв.м

🏘️ Свободни имоти: Остават 18 апартамента

📏 Площи: от 69 м² до 127 м²

🏗️ Етажи: 4 надземни

📍 Локация
София, кв. Манастирски ливади Изток

В непосредствена близост до бул. България и Околовръстен път, районът предлага бърз достъп до основни пътни артерии, търговски обекти, детски заведения и здравни центрове.

🏠 Типове имоти
✅ Двустайни апартаменти комфортни и светли
✅ Тристайни апартаменти просторни и функционални
🧱 Основни характеристики на сградата
🧱 Фасада: HPL окачена, с модерен архитектурен облик
🪟 Дограма: Висок клас 5-камерна алуминиева
🌡️ Изолация: 12 см топлоизолация
🔥 Отопление: Газификация
🚗 Паркиране: Подземни гаражи и наземни паркоместа
💧 Канализация: Свързване с централната система
💼 Финансиране
💳 Проектът разполага с осигурено банково финансиране от Пощенска банка, което улеснява процеса на покупка за крайния клиент.

✨ Предимства на имота
✔ Без промяна на цената по време на строителство

✔ Без комисионна от купувача

✔ Модерен, устойчив проект в динамичен и развит квартал

✔ Апартаменти с внимателно планирани разпределения

✔ Чудесна възможност за лично ползване или инвестиция

📞 Контакти за оглед и консултация:

👩‍💼 Екатерина Иванова

📧 Email: info@cloudhomes.bg

📱 Тел: 0878 204 888 / 0885 888 505

🏡 Инвестирайте в качество, удобство и спокойствие свържете се с Cloud Homes и открийте своя нов дом в сърцето на южна София!

Cloud Homes където визията среща стойността.
Особености
Тухла
За контакт:
0878204888
Брокер:
Кристина Лазарова
0878773407
Офис: гр. София, ул. Брегалница 59
Още оферти от брокера: Продава | Дава под наем | Купува | Наема
Агенция:
КЛАУД ХОУМС
0877530403
КЛАУД ХОУМС logo
Медал за прослужено време
В imot.bg от 2022 г.
cloudhomes.imot.bg
Адрес:
област София, гр. София, ул. Брегалница 59, ет. 2
ИЗПРАТИ ЗАПИТВАНЕ
ИЗПРАТИ ЗАПИТВАНЕТО

Продава 3-СТАЕН
град София, Манастирски ливади
Обява: 1c175138574444110

302 400 €
591 442.99 лв.
(2 400 €, 4 693.99 лв./m2)

Цената е с включено ДДС
ЗАПАЗИ ОБЯВАТА

Местоположение: град София, Манастирски ливади

Допълнителни данни за имотите в района и сравнение с други райони

Покажи

Период

и 2 месеца

* Средните цени са определени чрез медианна стойност